Nieuw Werchinge 2.0
6 appartementen beschikbaar
Energielabel A+++
2 slaapkamers
Ds. Herm. Pollaan 1 te Werkhoven
Vloerverwarming middels warmtepomp
Verwachte oplevering half 2026
*Deadline is verstreken, je kunt alleen nog inschrijven voor de reservelijst
Aantal appartementen
Totaal 6 - (6 beschikbaar)
Verwachte oplevering
Q1 2026
Woonoppervlakte
Ca 63 -65 m2
Aantal kamers
2 slaapkamers
Nieuw Werchinge 2.0
Wonen in het mooie Werkhoven? Gelijkvloers of juist een starterswoning?
Dan is dit uw en jouw kans! Midden in het charmante dorp Werkhoven wordt een kleinschalig nieuwbouwproject gerealiseerd: Nieuw Werchinge 2.0!
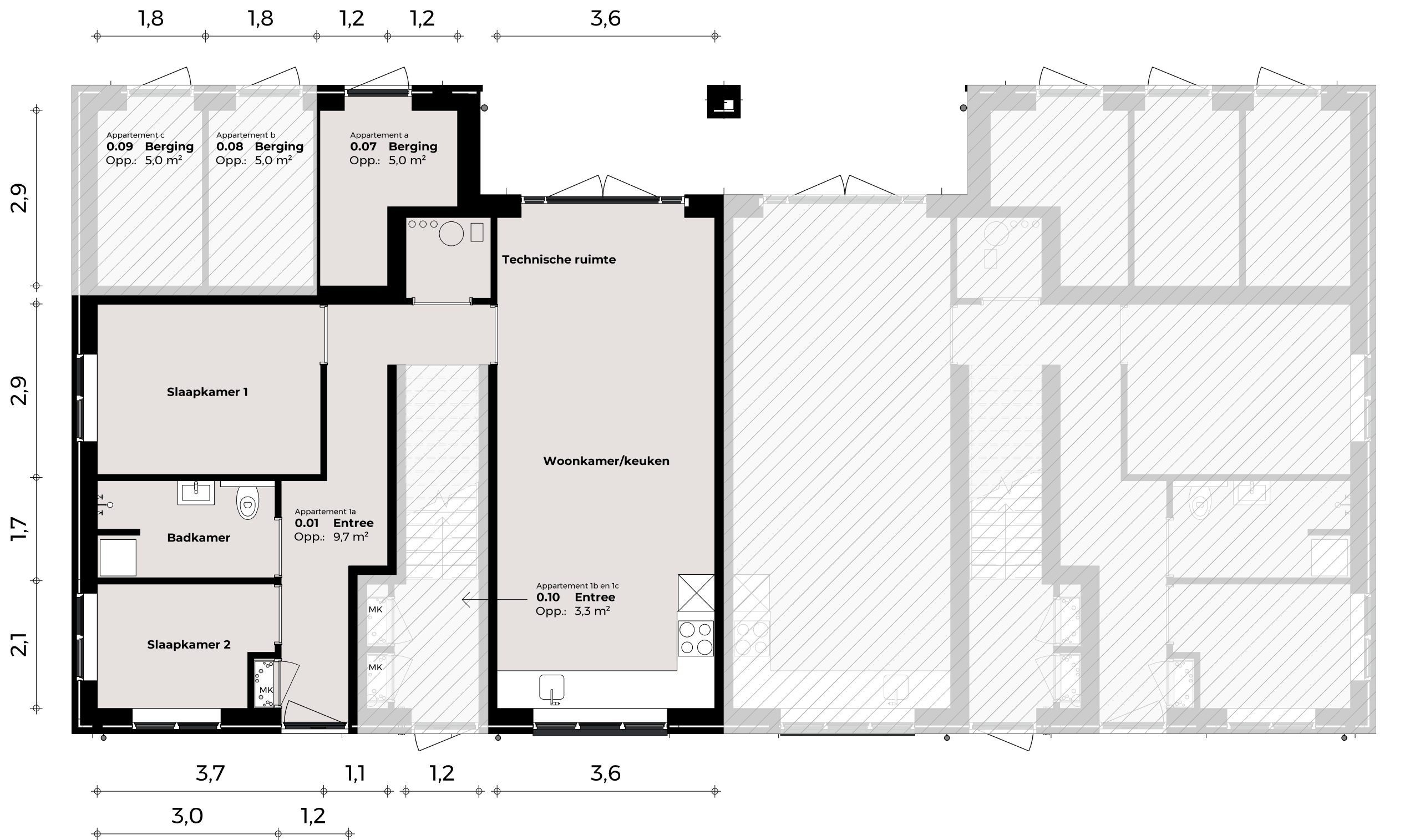
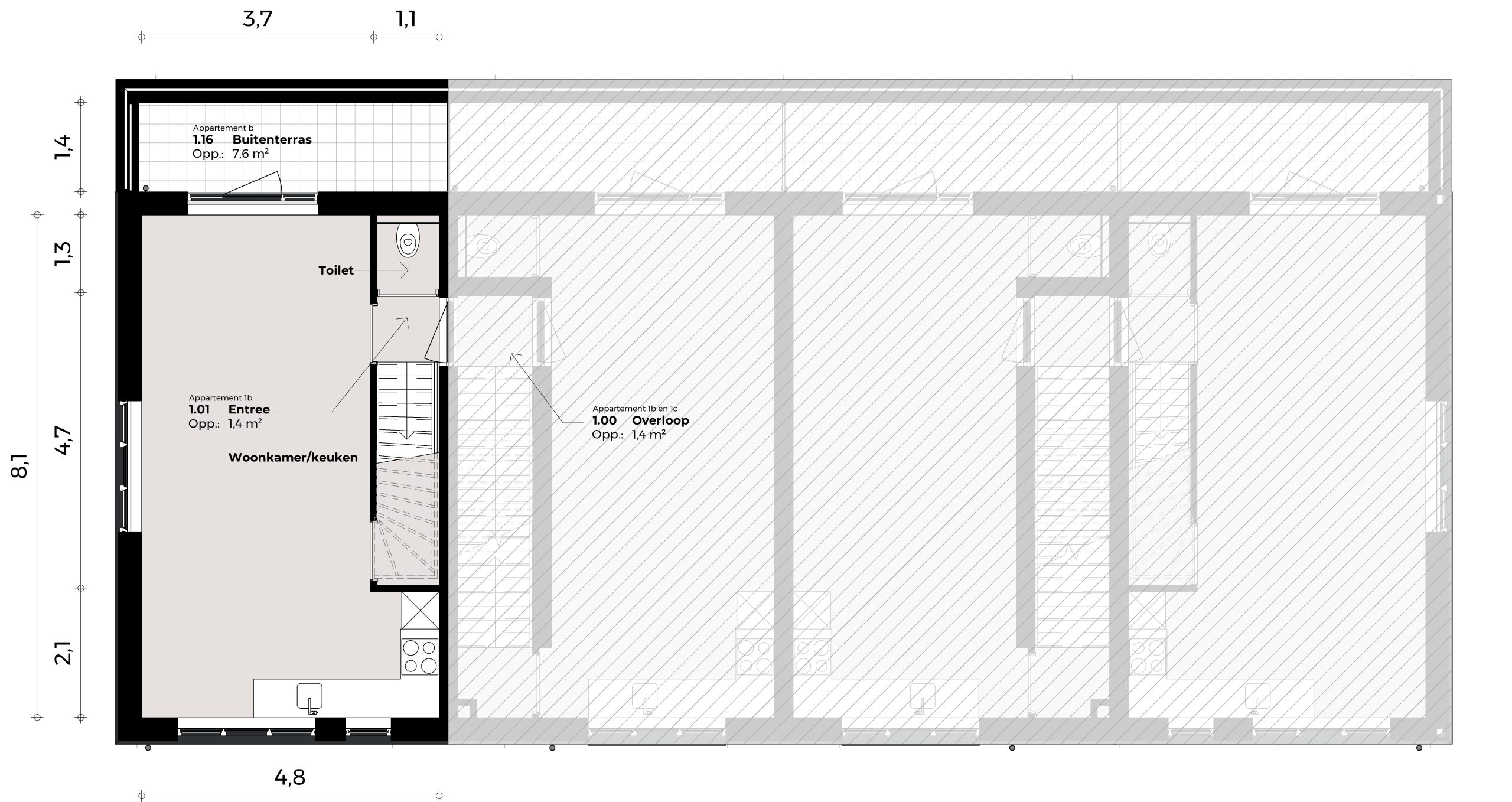
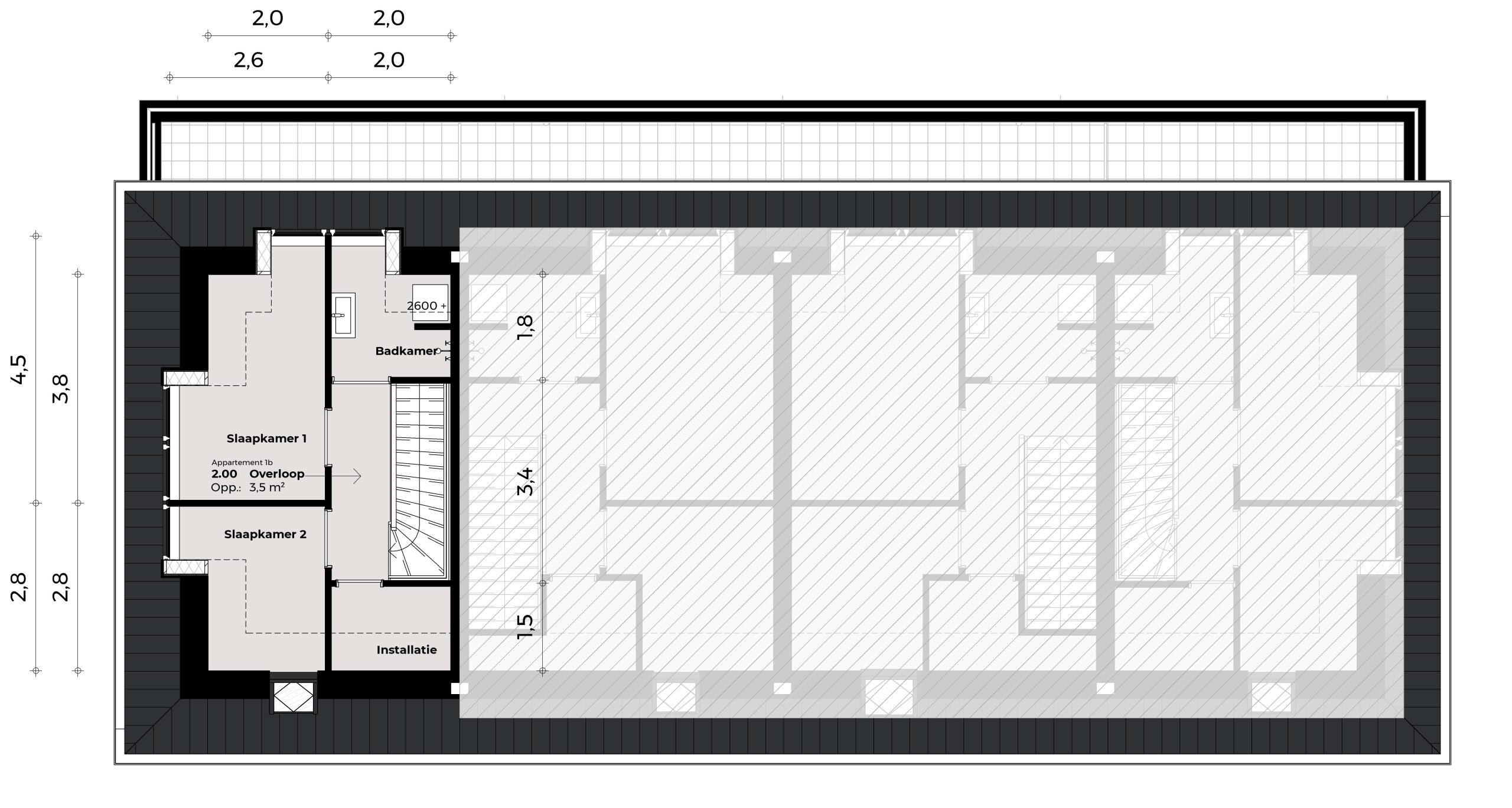
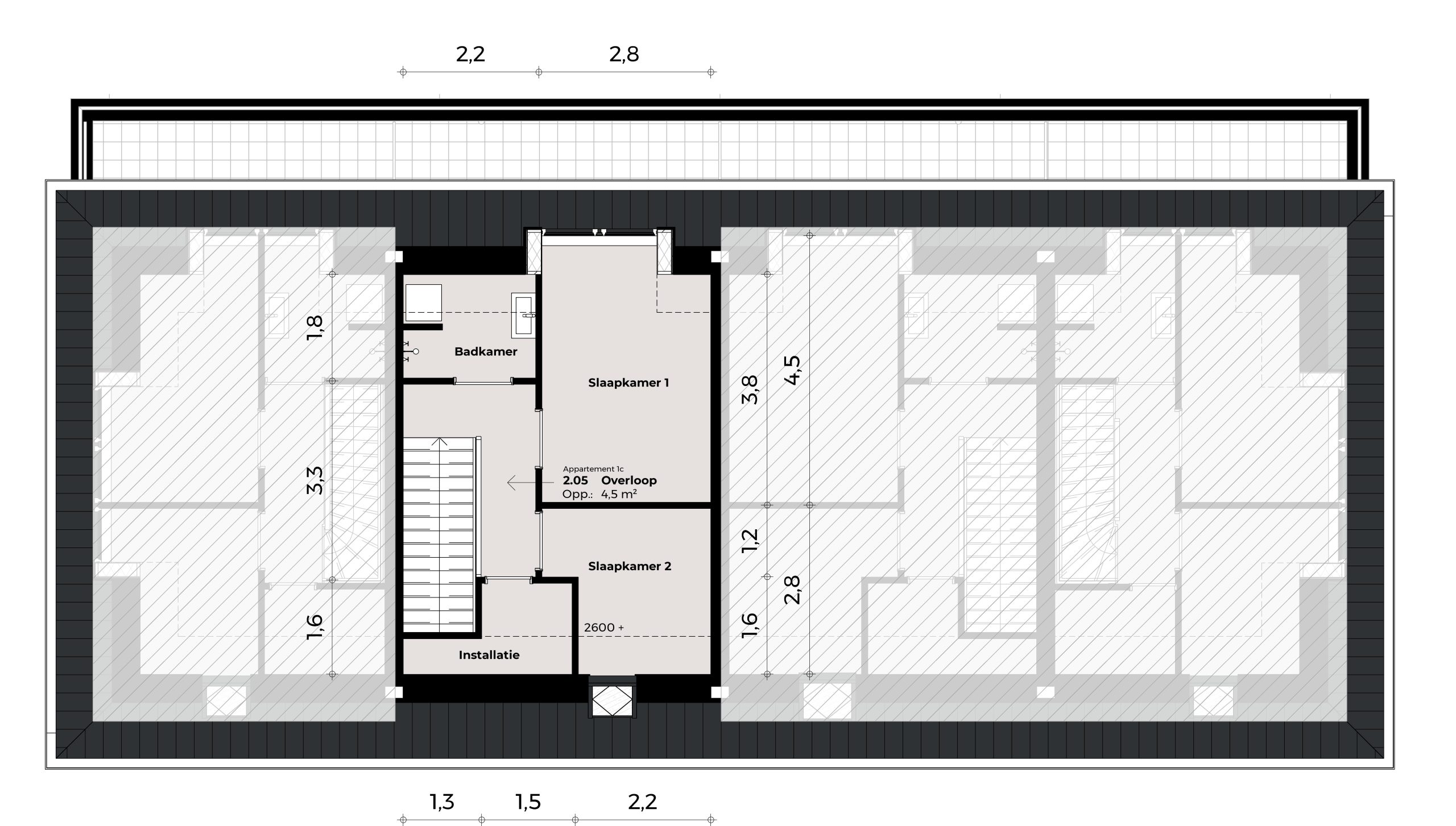
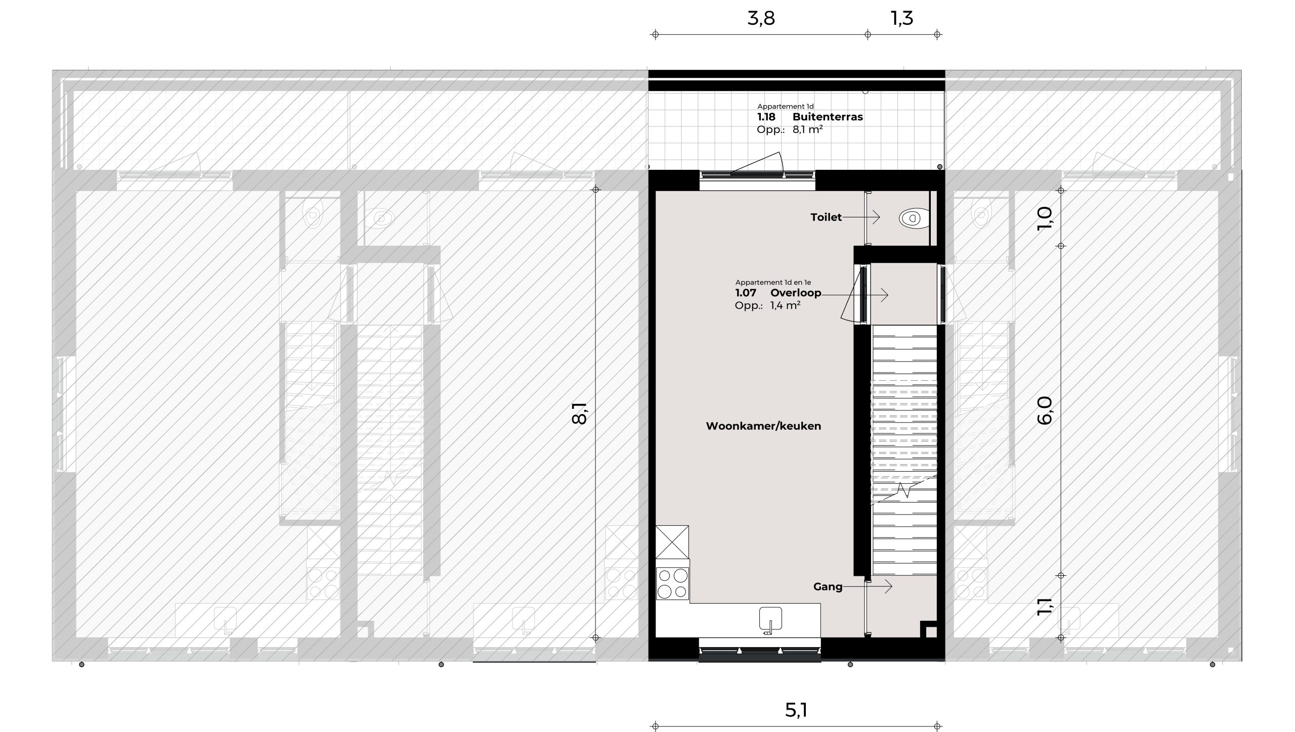
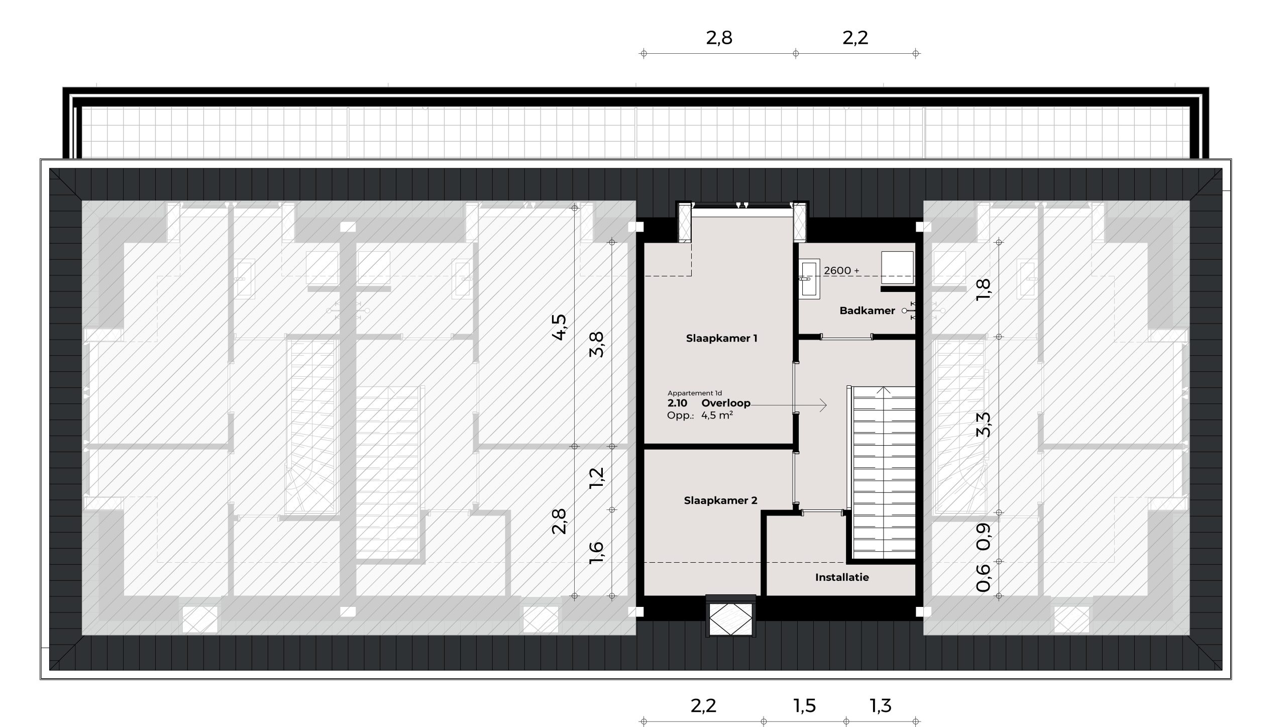
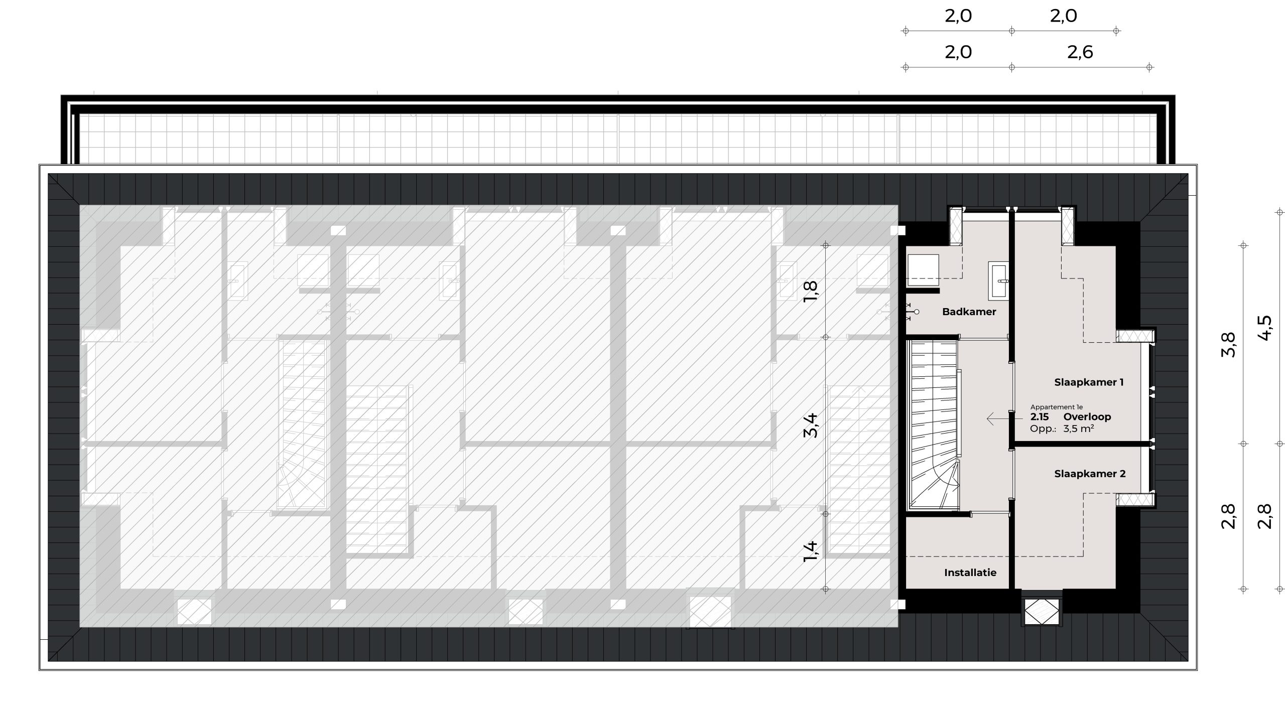
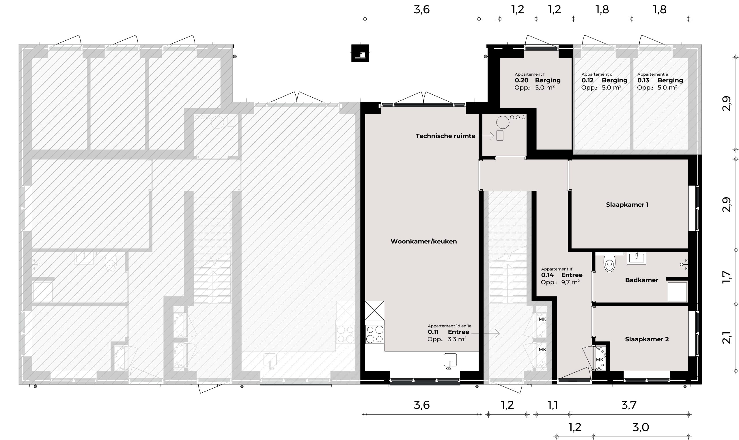
Op het perceel Dominee Hermanus Pollaan 1 in Werkhoven staat een gebouw met de naam ‘Nieuw Werchinge’ welke wordt gesloopt en plaatsmaakt voor Nieuw Werchinge 2.0! Een aantrekkelijke locatie met in totaal 6 duurzame appartementen, verdeeld over:
– 2 appartementen op de begane grond (levensloopbestendig)
– 4 maisonnettes verdeeld over de 1e en 2e verdieping (middels trap bereikbaar)
Alle woningen variëren in grootte van circa 63 tot 65 m² en beschikken over een eigen buitenruimte op het zuiden, een eigen berging van 5 m² en een eigen parkeerplaats!
Elke woning wordt opgeleverd met een energielabel A+++, wat staat voor een zeer energiezuinige woning met lage energielasten en een hoog wooncomfort. De woningen worden conform Woningborg gebouwd en afgeleverd inclusief sanitair en tegelwerk, exclusief keuken.
De doelgroep
In samenspraak met de gemeente is bepaald dat de appartementen in eerste plaats beschikbaar zijn voor gegadigde met een maatschappelijke binding met het dorp Werkhoven. Daarnaast is er bij de appartementen een anti-speculatiebeding en zelfbewoningsplicht van toepassing.
Er is sprake van een doelgroep met maatschappelijke binding indien:
– het maximale jaarinkomen mag niet hoger zijn dan € 109.694,- per jaar (prijspeil 2025)
– een woningzoekende minimaal zes jaar onafgebroken woonachtig was in Werkhoven, of
– een woningzoekende de afgelopen 10 jaar minimaal 6 jaar aaneengesloten woonachtig was in Werkhoven.
De locatie
Een fijne centrale plek in het dorp, gelegen op loopafstand van scholen, dagopvang, bakker, snackbar en sportvoorzieningen. Nabij de Brink, met de eeuwenoude Sint Stevenskerk en de dorpspomp. Verder is in het dorp de mooie korenmolen Rijn & Weert voor ambachtelijke producten en is het nabij Kasteel Beverweerd gelegen. In de directe omgeving zijn tevens volop fiets- en wandelmogelijkheden. Uitvalsweg A12 en openbaar busvervoer van en naar Utrecht zijn goed bereikbaar. In 20 minuten ben je al in hartje Utrecht met haar gezellige terrassen en winkels!
De procedure/toewijzing
Indien u/je voldoet aan de doelgroep en geïnteresseerd bent in 1 van deze appartementen dan kunt u/kan je zich op de projectwebsite inschrijven. De sluitingsdatum is vrijdag 6 juni 2025 om 12:00 uur in de middag. Na 6 juni 2025 zal er op basis van de ingeschreven kandidaten een toewijzing plaatsvinden door de makelaar in samenspraak met de ontwikkelaar.
Kortom: comfortabel, energiezuinig en modern wonen op een ideale locatie!
Wij verwijzen je graag door naar nieuwwerchinge.nl voor alle informatie!
Kenmerken
Zonnegrenzen
Inschrijven Nieuw Werchinge 2.0
Nog 6 van de 6 appartementen beschikbaar!
Wilt u zich inschrijven? Vul dan hieronder uw naam en e-mailadres in om het inschrijfformulier te ontvangen. Na het invullen van dit formulier kunnen wij uw aanvraag in behandeling nemen.
Zandweg 7
3962 EA, Wijk bij duurstede
0343-575575
wbd@entreemakelaars.nl
www.entreemakelaars.nl
*Deadline is verstreken, je kunt alleen nog inschrijven voor de reservelijst














